川島河田町(売買 中古一戸建て) | 各務原市川島河田町 | 各務原市の新築一戸建 | 中古一戸建 | マンション | 土地 | 売却査定 | 買取 | 分譲 |リフォーム|住宅ローン相談|センチュリー21アーム各務原店

川島河田町 | 各務原市川島河田町の不動産物件

川島小学校徒歩7分・川島中学校徒歩5分
【中古一戸建て】 NEW! 駐車場あり
価格 780万円 (税無)
名鉄各務原線 各務原市役所前駅
バス35分 バス停「川島小学校前」 徒歩7分
スマホ表示
物件コード:121901-5936
所在地 建物面積
土地面積
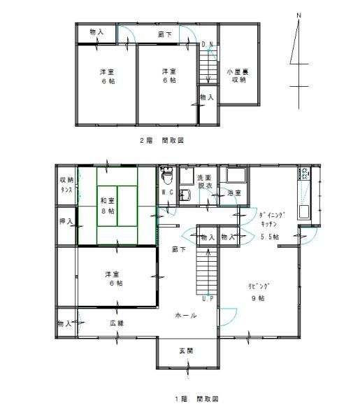
間取り 築年月
岐阜県各務原市川島河田町 112.79m2
202.84m2
4LDK 1984/01

物件基本情報

物件種目 中古一戸建て
物件名称 川島河田町
所在地 岐阜県各務原市川島河田町
交通
名鉄各務原線 各務原市役所前駅
バス35分 バス停「川島小学校前」 徒歩7分
階数 2階建
建物構造 木造
建ぺい率/容積率 60% / 200%
駐車場
学校 川島小学校 / 川島中学校
設備・条件
  • ガス:個別プロパン
  • 汚水:公共下水
  • 水道:公営水道
センチュリー21アーム
0800-200-6621
携帯電話・PHSもご利用になれます。

画像・写真

周辺地図

地図を表示中...
ストリートビュー未対応エリアです。

物件詳細情報

物件用途 居住用 地目 宅地
間取り詳細 - 都市計画 市街化区域
建物向き - 用途地域 第一種住居地域
土地面積基準 公簿 接道 公道 西 幅員4m (接面12.8m)
土地権利 所有権 私道面積 -
借地条件 - 道路位置指定 -
地代 - 不適合接道 -
建築確認番号 - セットバック -
現況 空家 国土法届出 不要
引渡時期 相談 取引態様 専任
設備その他 -
特記事項 -
備考 現況は個別浄化槽使用
公開日 2026/04/17 広告有効期限 2026/05/18
電話でお問い合わせ
センチュリー21アーム 店舗情報
[所在地] 岐阜県各務原市那加前洞新町4丁目183番地
[営業時間] 9:30~18:30 水曜日・木曜日(年末・年始)
0800-200-6621
携帯電話・PHSもご利用になれます。

このページをご覧の方に
おすすめの不動産物件