◆センチュリー21アーム◆

>>PC&スマホサイトへ
下へ
物件詳細(売買)

画像2 画像3 画像4 画像5 画像6 画像7 画像8 画像9 画像10 画像11 画像12 画像13 画像14
【中古一戸建て】岐阜市金華町2丁目 中古戸建
名鉄名古屋本線 名鉄岐阜
岐阜県岐阜市金華町(地図)

価格:350万円(税無)

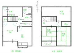
建物面積:72.86m2
土地面積:64.95m2
間取り:3LDK
階数:2階建
建物構造:木造
築年月:1977/03

現況:空家
建ぺい率:60%
容積率:200%
土地権利:所有権
建築確認番号:
駐車場:
学校:長良西小学校/長良中学校

物件コード:121901-5820
取引態様:専任
公開日:2025/10/04
広告有効期限:2025/11/04

0800-200-6621
物件のお問合せ
お問合せにあたってのご注意

上へ

トップページ

(c)アーム株式会社